发布时间:2019-07-10
项目地址:中山市三角镇金三大道中自建别墅
空间大小:该项目位于半地下室,面积为43平方米
整体投入:26万左右
设计公司:CAV设计中心

一、用户需求描述
业主喜欢在闲暇时,约上一群朋友来到家中聚会,因此想要在家中打造一个既能看电影又可以唱歌的娱乐空间。

二、构建、声学和光学处理及特别设计
该项目为自建式豪宅建筑,影院位于半地下室,隔音较差,整体环境较为潮湿,因此在构建影院的过程中,我们的设计师在设计方案时重点考虑了墙面、窗户、门及所有的中央空调和通风系统开孔处的隔音处理,采用减震垫+吸音棉+多层防潮阻燃板+多层隔音毡等方式对墙体、地面、天花等地进行隔音处理。

并且针对半地下室较为潮湿的环境,设计师还做了防潮防水的处理。为了让观影和K歌效果达到理想状态,设计师针对影音室的声学条件,针对性的选择最为恰当的影音设备,再加上对专业灯光的设计处理,为业主营造更为精彩的娱乐体验。
三、系统调试与设计者心得
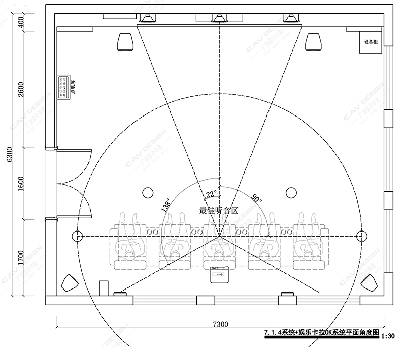
根据房间的面积、声学环境以及业主需求,我们为业主选择了嵌入式7.2.4杜比全景声影院系统+4.0专业娱乐系统。其中主音箱和中置音箱采用的是德国伊顿ETON定制版扬声器IW11a,环绕音箱采用的是丹麦Scan-Speak(绅士宝)定制版DL-3,置顶音箱采用的则是CAV专为满足当下最前沿的杜比全景声(Dolby Atmos)影院定制方案需求而推出的置顶扬声器HT-70,全景声功放选用的是英国ARCAM雅俊AVR390与CAV A600的前后级组合,再加上丹麦Scan-Speak(绅士宝)定制版超重低音IWB12D,360度全方位的多维音效,让您在家就能享受到商业影院的震撼效果。


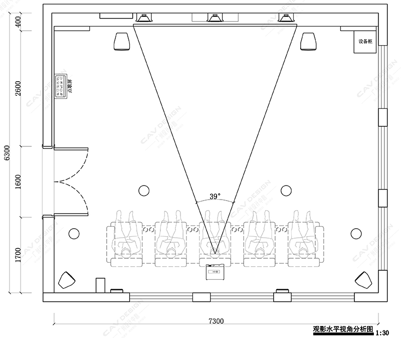
为了保证声音跟画面更好的融合,在视频器材的选择上我们采用了海美迪HD920B播放器、SONY HW268 投影机以及159寸弧形编织幕。其中SONY HW268 投影机拥有4K分辨率,画质是高清的四倍以上,无论你是欣赏电影还是玩游戏都能为用户展现出逼真的绚丽色彩和更多的画面细节。


专业娱乐系统则是选用了意大利B&C定制版全频专业音箱K-12、K-10各2只,其中K-12采用意大利B&C钕磁铁驱动扬声器,高达98dB的灵敏度,350W(AES)大功率输出,拥有相当高的可靠性,是各种大型娱乐空间的理想选择。再加上CAV专业功率放大器QQ-65、QQ-45,CAV专业效果器QQ100,CAV智能感应无线麦克风系统U-780和支持云端12万首在线更新曲库的视易点歌机,以及LED声控水晶灯、四合一声控激光灯。五彩斑斓的霓虹灯搭配震撼低沉的动感音乐,让您和你的朋友在家就能轻松嗨唱起来,全面释放情绪。



四、整体风格与效果
影音室采用浪漫欧式设计风格,在幽蓝色的星空顶的映射下,整个观影空间美轮美奂。再加上专业的声学设计、专业的影音设备以及专业工程师的精细调校,为业主带来媲美商业电影院和KTV的震撼效果。

五、器材配置
影音设备:
前置/中置音箱:CAV IW11a×3只
环绕音箱:CAV DL-3×4只
置顶音箱:CAV HT-70×4只
前级功放:英国ARCAM雅俊AVR390×1台
后级功放;CAV A600 ×1台
超重低音:CAV IWB12D×2台
专业娱乐设备:
专业音箱:CAV K-12×2只
专业音箱:CAV K-10×2只
专业功率放大器:CAV QQ-65×1台
专业功率放大器:CAV QQ-45×1台
专业效果器:CAV QQ100 ×1台
专业时序器:CAV PC-820×1台
智能无线话筒:CAV U-780×1套
视频设备:
播放器:海美迪HD920B×1台
投影机:SONY HW268 ×1台
幕布:159寸弧形编织幕×1张
其他:
CAV定制设备柜×1台
LED声控水晶灯×1台
四合一声控激光灯×1台
CAV办公电话:020-87516698 / 020-87510918
招商加盟:13502408811(客服)
地址:中国广东省广州市天河区黄埔大道163号富星大厦东22楼
传真:020-87567440
邮编:510620
网站:http://www.cn-cav.com
邮箱:cav@cn-cav.com

敬请联系咨询顾问
获得更多尊享服务

关注品牌官方微信
了解最新企业资讯